Poniclub Viracocha, S. Agustín del Guadalix


En el año 1992 se nos encargó el proyecto de una explotación equina en una finca rústica en S. Agustín del Guadalix.

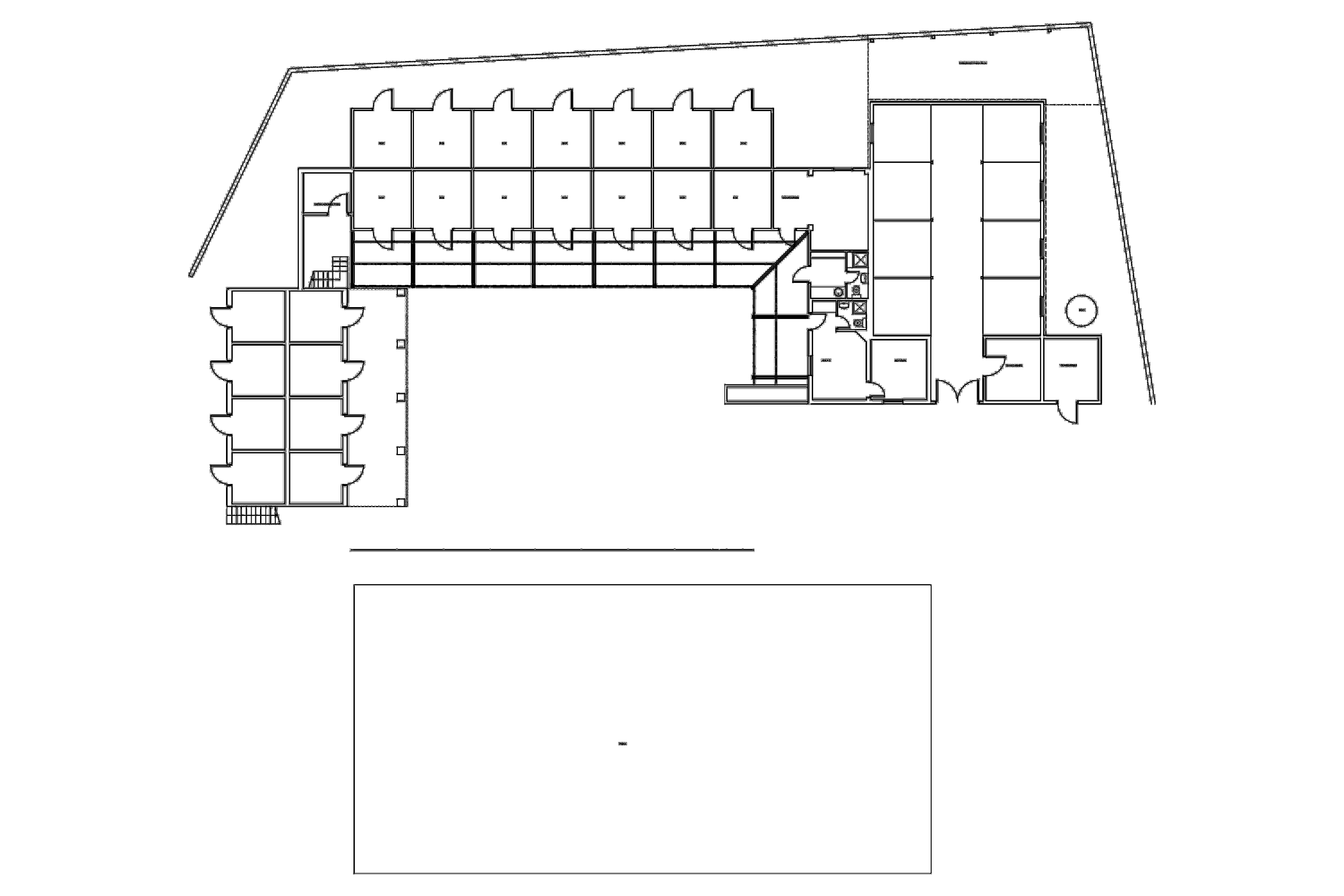
Se ejecutó, a lo largo de los años, un proyecto completo de tres pistas de competición, una de ellas cubierta, boxes para estancia de caballos, tanto en nave como con acceso desde el patio, paddocks exteriores con cobertizos, y una vivienda rústica, con fachadas de revoco de arena y cubierta de madera vista.

Siguiente>
<Anterior
Volver
< >
X
< >
X
< >
X
< >
X
< >
X