Edificio de oficinas T2, Alcobendas, Madrid


En el año 1989, el Ayuntamiento de Alcobendas convocó concurso público para la enajenación de parte de la parcela T5 del Parque Empresarial de la Moraleja por permuta de edificación para uso de oficinas, en el resto de dicha parcela y en la T2.

La Inmobiliaria de Cubiertas y MZOV resultó adjudicataria de dicho concurso al que acudió con el proyecto redactado por Piqueras & Bonet y otros colaboradores, construyéndose los correspondientes edificios en las citadas parcelas, que quedaron en poder del Ayuntamiento de Alcobendas.

El edificio T2 ha sido destinado a alquiler de oficinas por plantas a distintas empresas y el T5-B está arrendando al grupo t2 para su sede central.

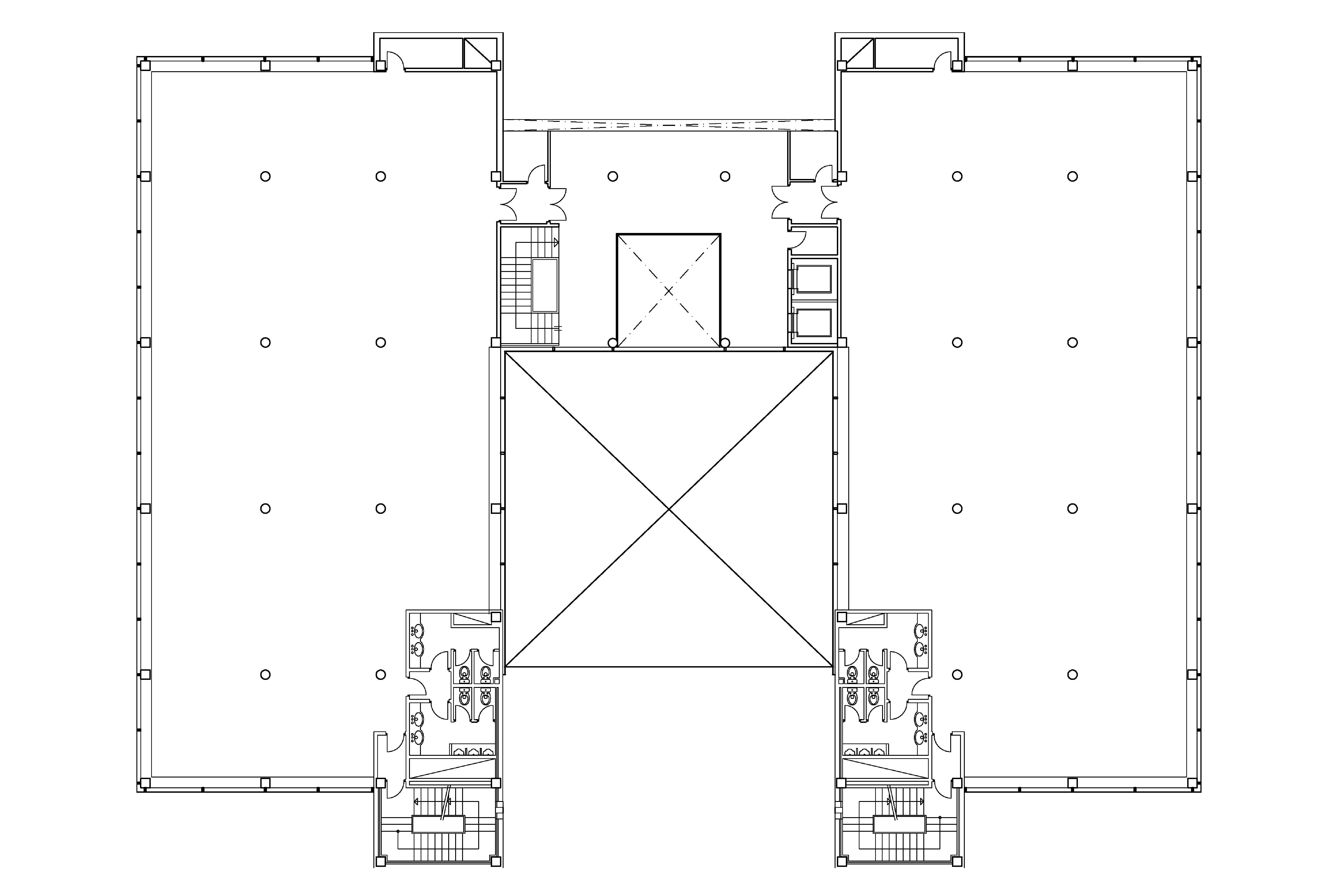
Ambos edificios responden a características constructivas semejantes integrados por planta sótano, semisótano y cuatro plantas de oficinas sobre rasante el primero y la misma disposición de niveles con un sótano más el segundo.

Este último organiza sus plantas alrededor de dos patios interiores de luces de 15x15 m.

El primero lo hace alrededor de un patio abierto a fachada de semejantes características.

<Anterior
Volver
< >
X
< >
X
< >
X
< >
X
< >
X