Edificio de oficinas C/ Sepúlveda, Alcobendas


La Compañía LLANOS DE VALDEMORILLO sobre el proyecto básico, redactado por Enrique López García, la redacción del proyecto de ejecución de un edificio administrativo en la calle Sepúlveda del polígono industrial de Alcobendas.

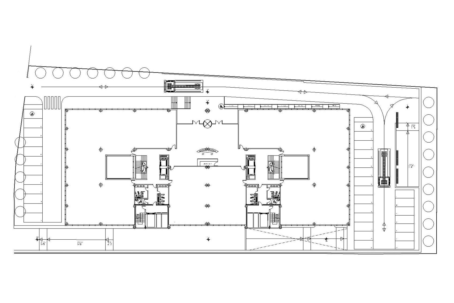
Se trata de un edificio para uso de almacén en planta semisótano con 5,60 m de altura libre, las plantas sótano de aparcamiento y tres plantas sobre rasante de oficinas.

Siguiente>
<Anterior
Volver
< >
X
< >
X
< >
X
< >
X
< >
X