Residencia de estudiantes en la C/ San Bernardo, Madrid


En el año 2014 recibe Piqueras & Bonet el encargo para la realización del proyecto de rehabilitación integral de un edificio interior, situado en un patio de la calle San Bernardo de Madrid.

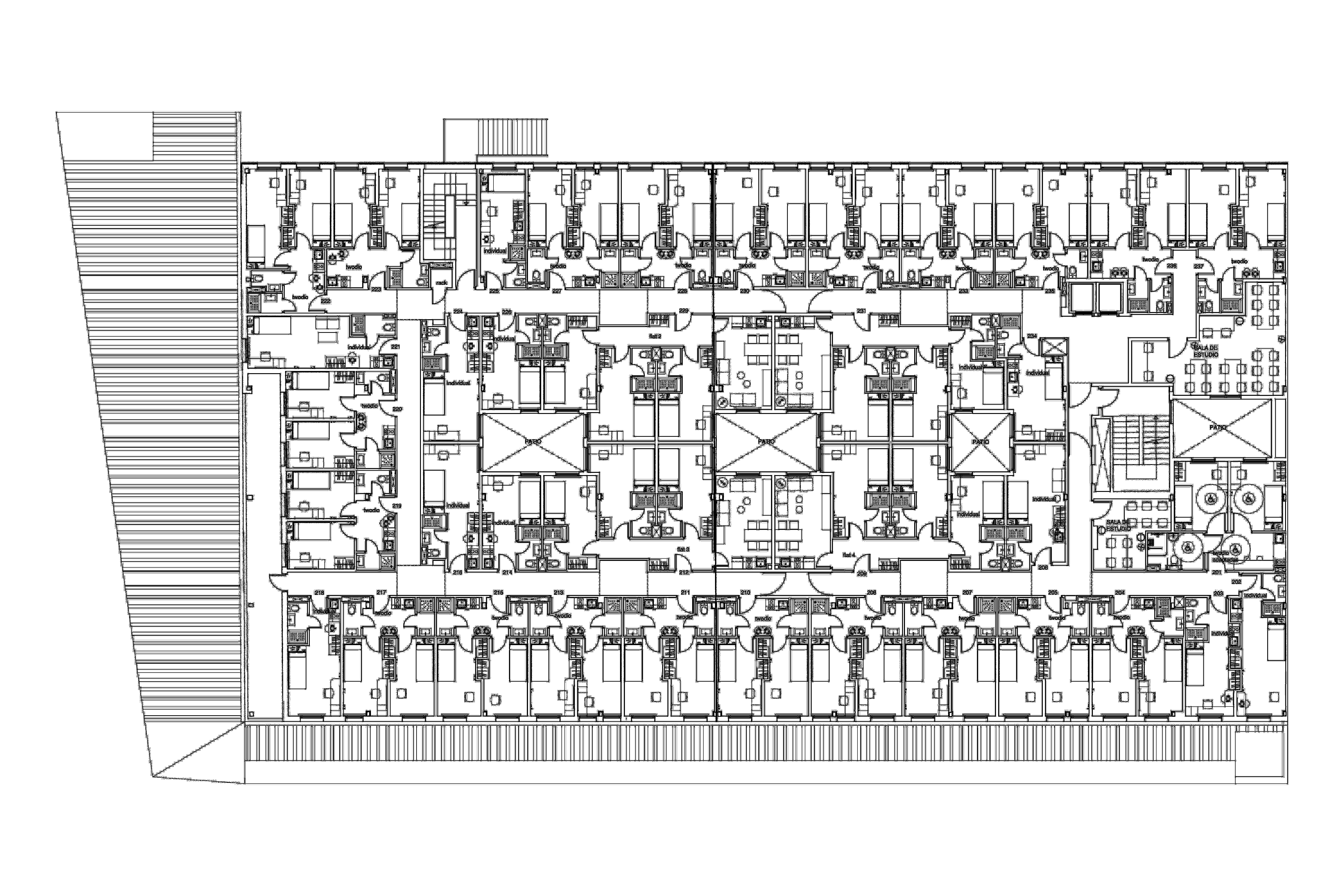
Se hizo la modificación de un edificio de oficinas reconvirtiéndolo en residencia de estudiantes con habitaciones de distintos tipos, y zonas comunes.

Actualmente es la Residencia de Estudiantes Claraval.

Siguiente>
<Anterior
Volver
< >
X
< >
X
< >
X
< >
X
< >
X