Edificio Pfizer, Alcobendas, Madrid


Por encargo de la Compañía Pfizer se proyecta el edificio que lleva su nombre en la parcela T5-A del Parque Empresarial de la Moraleja, para establecer en él las oficinas de su sede central en España.

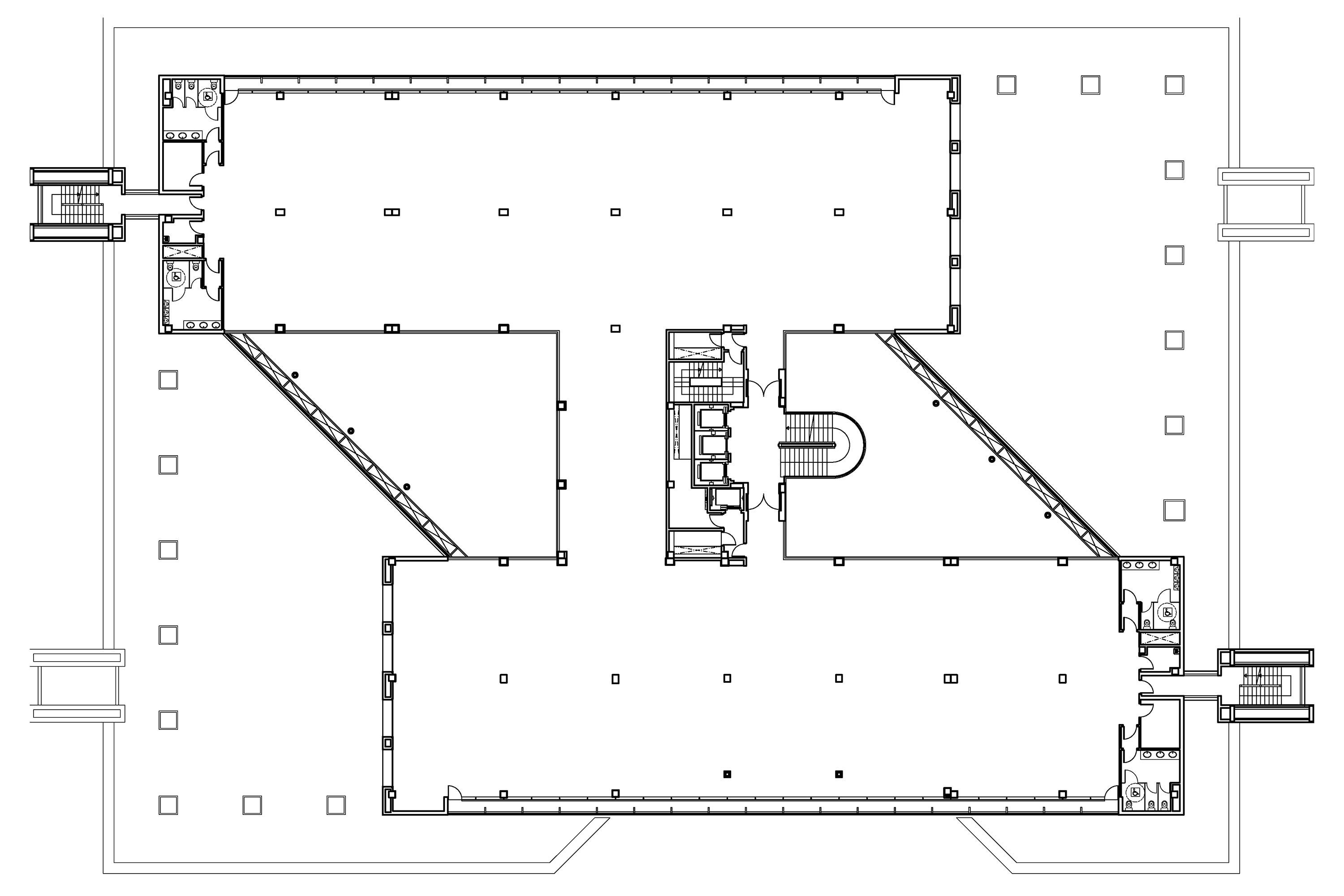
El edificio se organiza en dos plantas sótano, una planta semisótano y cuatro plantas sobre rasante.

Estas últimas y el semisótano se distribuyen alrededor de dos atrios abiertos a fachada a través de un cerramiento de vidrio en toda la altura y cubierto en su coronación mediante lucernarios en diente de sierra. El volumen interior de estos atrios se incorpora al espacio de oficinas en cada planta dentro del mismo ámbito actualizado, constituyendo una prolongación del espacio de trabajo.

El acceso al edificio se hace a través de la planta semisótano en sentido descendente, estableciendo en ella el vestíbulo principal con lo que se pone en valor esta planta, liberando la superficie equivalente en las plantas superiores.

El cerramiento de las plantas superiores se resuelve con una doble fachada compuesta de piel exterior de vidrio serigrafiado y templado permeable al aire, y cerramiento interior constituido por peto de fábrica y huecos corridos de ventana con vidrios de altas prestaciones.

Siguiente>
<Anterior
Volver
< >
X
< >
X
< >
X
< >
X
< >
X