Residencia de estudiantes en Pamplona


En el año 2019 Piqueras & Bonet y OFS Arquitectos reciben el encargo por parte de la promotora Tamacite Dos Ibérica SL de la ejecución de una residencia de estudiantes como anejo a una Iglesia existente, y manteniendo ésta, en la C/ Media Luna 39, Pamplona.

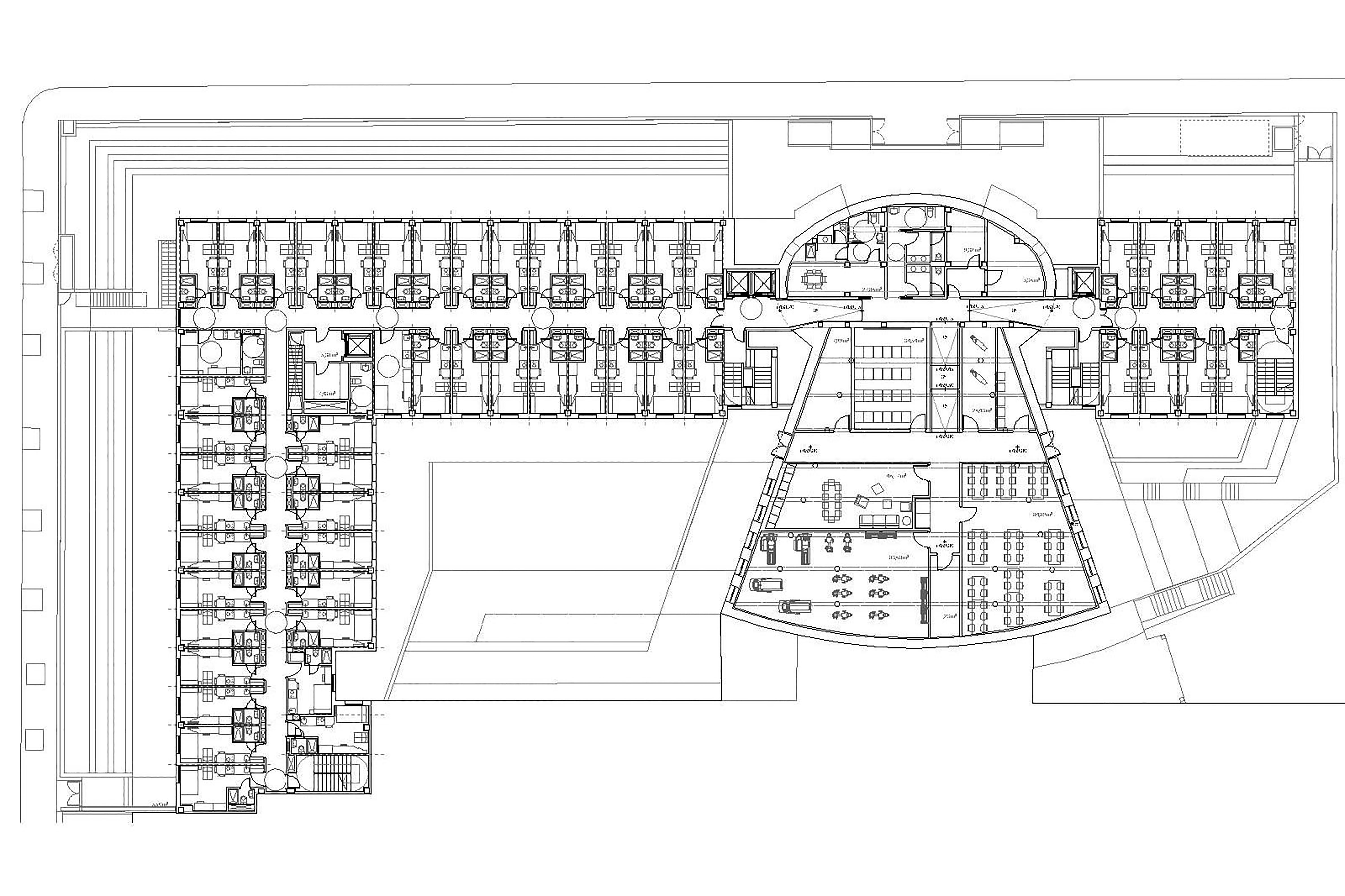
El proyecto es diferente a lo habitual, y consta de dos brazos de semisótano, baja y cuatro alturas, unidos entre sí por la antigua iglesia existente, donde se han proyectado las imponentes zonas comunes. La superficie total construida es de 8.516 m².

Se procedió a la demolición de los edificios anejos a la iglesia, ejecutándose nuevas edificaciones a ambos lados, y restaurando la antigua iglesia.

Las habitaciones son todas individuales con cocina, y discurren a ambos lados del pasillo en las seis alturas ya citadas. El total es de 323 habitaciones.

La fachada se ha ejecutado en ladrillo visto de dos tonos para dar continuidad con la fachada de la iglesia existente.

<Anterior
Siguiente>
Volver
< >
X
< >
X
< >
X
< >
X
< >
X