Museo del Esquí, Cercedilla


Por encargo de la Consejería de Deportes de la Comunidad de Madrid, se realiza proyecto y dirección de obra para la rehabilitación integral de un edificio para museo del esquí, situado en la Plaza Mayor de Cercedilla (Madrid).

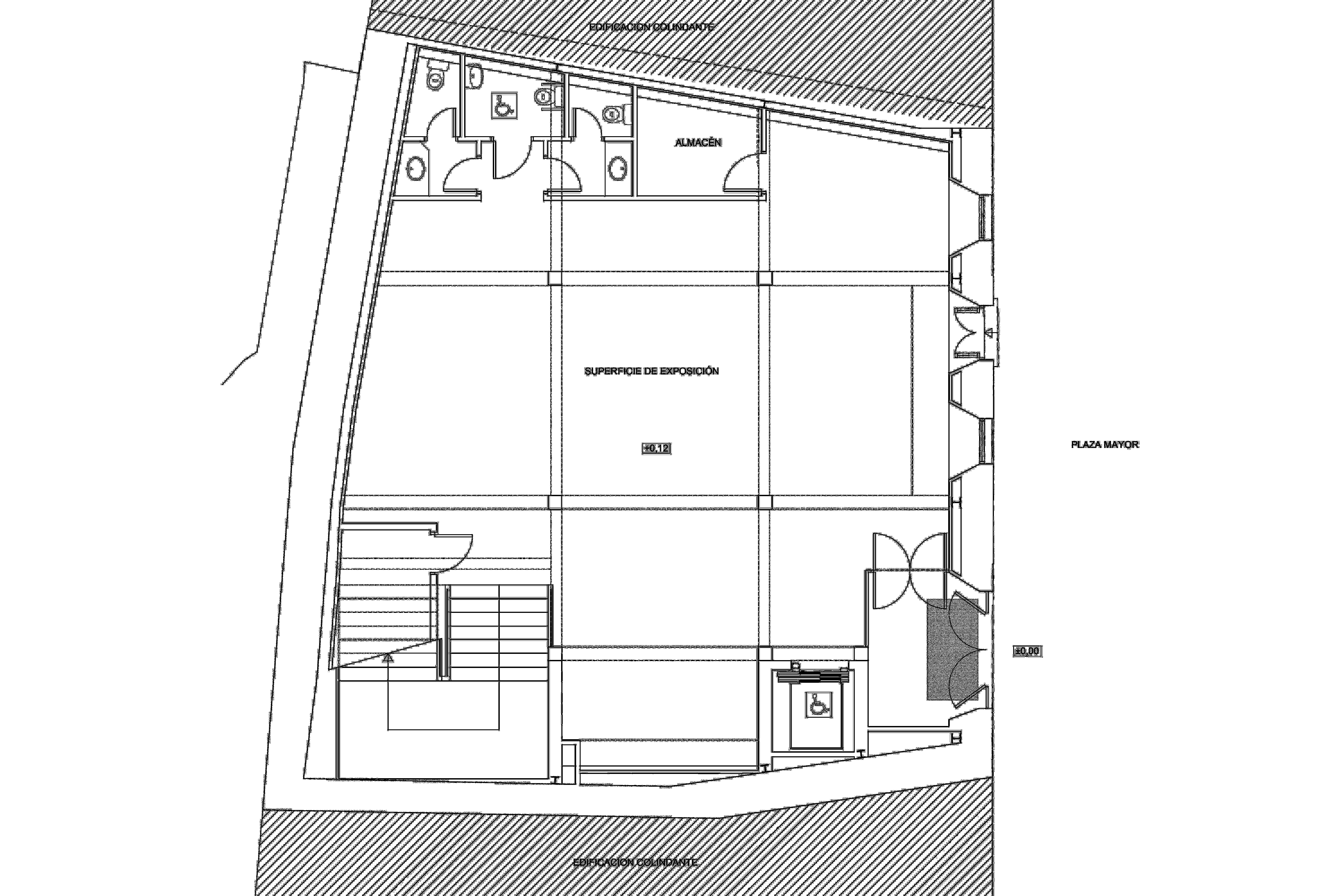
El edificio se sitúa entre medianerías y se organiza en torno a un atrio central alrededor del cual se articulan las áreas de exposición, repartidas en tres plantas sobre rasante. El proyecto incluye en una segunda fase la construcción de un edificio complementario de nueva planta en la parte posterior de la parcela, para auditorio y sala de conferencias y espacios complementarios de uso administrativo.

El edificio se encuentra catalogado con un grado de protección que afecta a sus fachadas y conjunto de su envolvente exterior, por lo que se realizó una restauración total de sus fachadas, cubiertas y huecos, utilizándose para ello técnicas y materiales tradicionales, así como tratamientos protectores y restauradores de la piedra y sus mamposterías.

En el interior se realizó una restructuración integral con una nueva estructura triangulada con madera y recalce y consolidación de su cimentación, así como de los elementos sustentantes de la cubierta.

Siguiente>
<Anterior
Volver
< >
X
< >
X
< >
X
< >
X
< >
X