Rehabilitación y reestructuración de un edificio de oficinas en C/ Ruiz de Alarcón, Madrid


Por encargo de la empresa INTERCASER, actualmente SKANDIA, se realizó una reestructuración parcial con rehabilitación de fachadas y cubierta, de un palacete construido en 1.927.

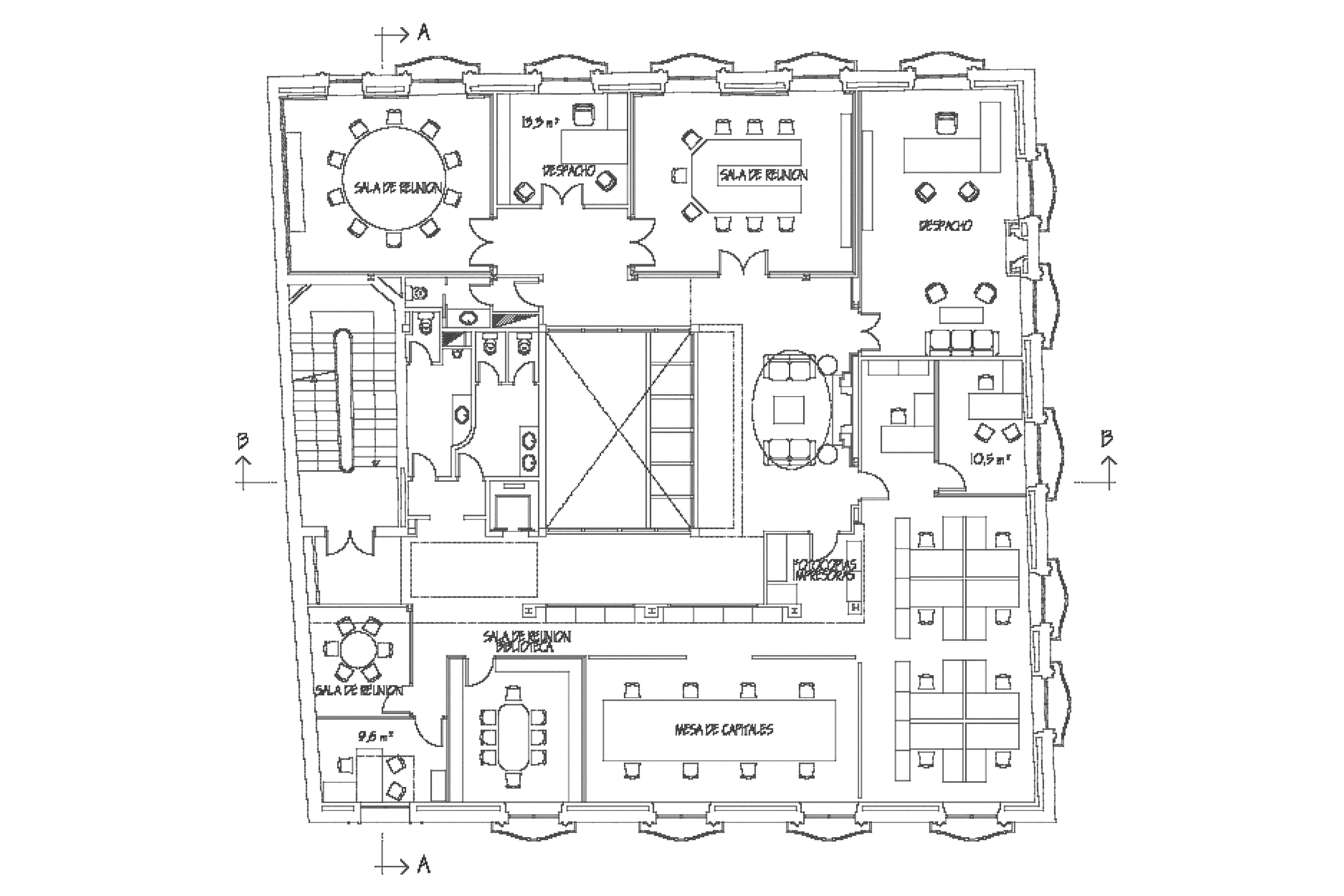
La reestructuración contempla el acondicionamiento del edificio para albergar las oficinas y sede social de la entidad, mediante la creación de un patio central en torno al cual se organizan los distintos espacios de trabajo.

En sendas pastillas junto a la medianería, se organizan los accesos verticales y áeras de servicio.

Al tratarse de un edificio catalogado con un grado de protección que afectaba al conjunto de su envolvente exterior, se realizó una restauración completa de sus fachadas, cubierta y huecos, realizando un tratamiento de los mismos con materiales y técnicas tradicionales.

Posteriormente, entre los años 1.999 y 2.000 se realizó una nueva remodelación interior para modernización y actualización técnica de los espacios interiores de oficina.

Siguiente>
<Anterior
Volver
< >
X
< >
X
< >
X
< >
X
< >
X