Edificio de viviendas en la C/ Jesús, Ibiza


Por encargo de la sociedad Studios Cárpatos, SL, se realiza proyecto para un edificio de 5 viviendas de lujo, situado frente a la playa de Talamanca, en Ibiza.

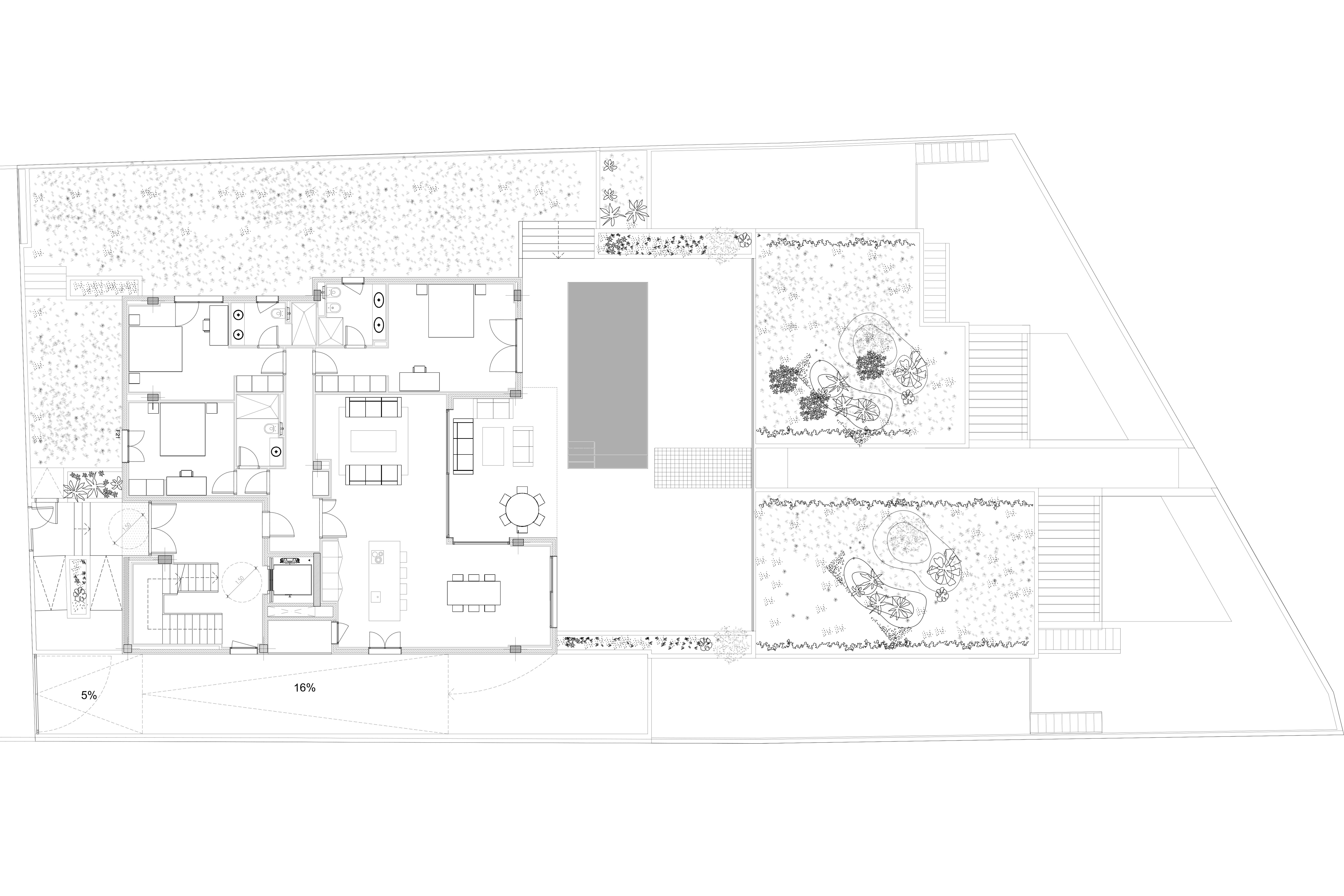
El proyecto contempla la distribución, en una parcela de fuerte pendiente situada en la calle Jesús, frente a la playa de Talamanca, de un edificio escalonado en 3 alturas, sobre rasante, distribuyendo 5 viviendas, y bajo rasante para uso de garaje aparcamiento y trasteros.

Dada la privilegiada situación del edificio, las viviendas se estructuran como viviendas de lujo, así como por los materiales de construcción y de acabado previstos.

Siguiente>
<Anterior
Volver
< >
X
< >
X
< >
X
< >
X
< >
X