Edificio de oficinas C/ Juan Ron, Madrid


Por encargo de la empresa LLANOS DE VALDEMORILLO se proyectan dos edificios administrativos en las parcelas 7.6.a.1 y 7.6.a.3 del P.A.V./P.P. II-6 de Carabanchel, C/ Juan Ron 1.

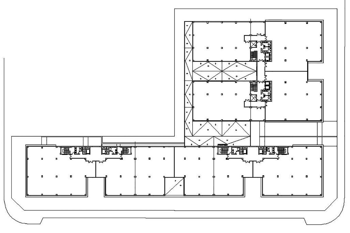
Los edificios se organizan en dos plantas de sótano comunes a ambos y 5 plantas sobre rasante.

Los edificios tienen planta sensiblemente rectangular con una serie de patios a fachada que cortan la gran longitud de la misma.

La planta baja se encuentra ocupada en su mayor parte por un local comercial para mediano negocio, y la altura de dicha planta es de 5 m, conformando un potente zócalo de piedra a las plantas superiores, más ligeras, de vidrio.

La planta de instalaciones se cubre con una marquesina metálica volada.

Siguiente>
<Anterior
Volver
< >
X
< >
X