Edificio de oficinas C/ Albarracín, Madrid


Por encargo de la sociedad Llanos de Valdemorillo, se realiza el proyecto y la dirección de la obra para un edificio de oficinas (uso industrial/multiempresarial), situado en la calle Albarracín 34, en Madrid.

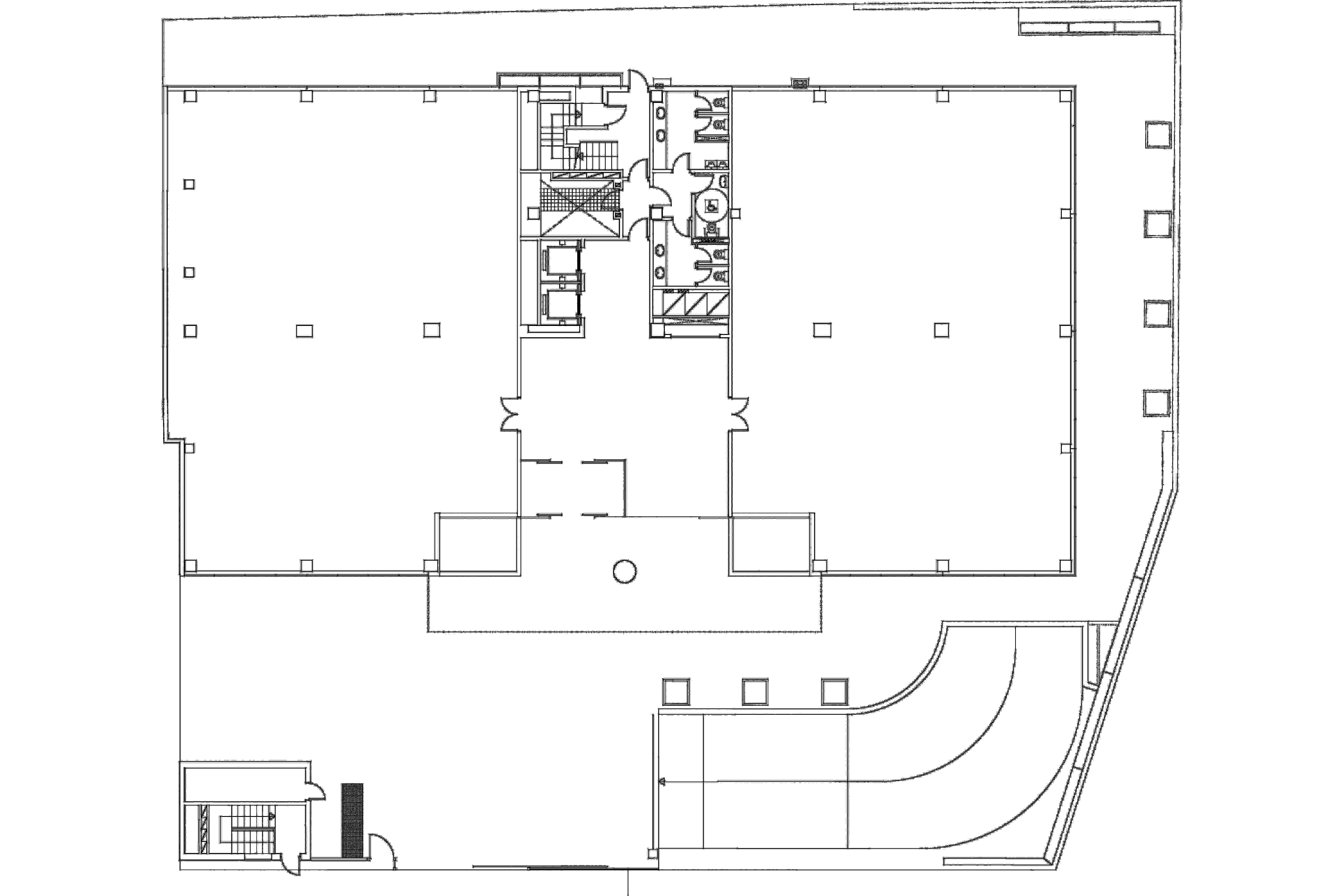
El edificio se sitúa en un fondo de saco de la parcela correspondiente con uso terciario de servicios empresariales. Tiene configuración de edificación exenta y consta de dos plantas de sótano para uso de garaje aparcamiento e instalaciones, planta baja para accesos, recepción y locales y 4 plantas para uso de locales para servicios empresariales, más planta de cubierta para instalaciones generales.

El esquema tipo del edificio configura la pastilla de núcleo de comunicaciones, aseos y patinillos de instalaciones en la zona central posterior del edificio, dando lugar a la formación de 4 locales independientes por cada planta, ampliable hasta 2 locales e incluso un único local por cada planta, adaptándose de ésta forma al régimen en arrendamiento del edificio, para el uso de servicios industriales multiempresariales.

Siguiente>
Volver
< >
X
< >
X
< >
X
< >
X
< >
X